Dowiedz się więcej:
Nowoczesny dom wolnostojący w podwyższonym standardzie | Więcławice Stare
Kameralne osiedle 11 wolnostojących domów (3 różne projekty) o podwyższonym standardzie.
DOM NR 5 – 212 m² | Duża działka 750 m²
Dom o powierzchni 212 m² składa się z trzech kondygnacji, zapewniając komfort i przestrzeń dla całej rodziny.
Przemyślany układ pomieszczeń umożliwia wygodne życie i adaptację wnętrz do indywidualnych potrzeb.
- Piwnica (70,1 m²): Garaż na dwa samochody (37,2 m²), pomieszczenie rekreacyjne (22,4 m²), pomieszczenie techniczne (5,4 m²).
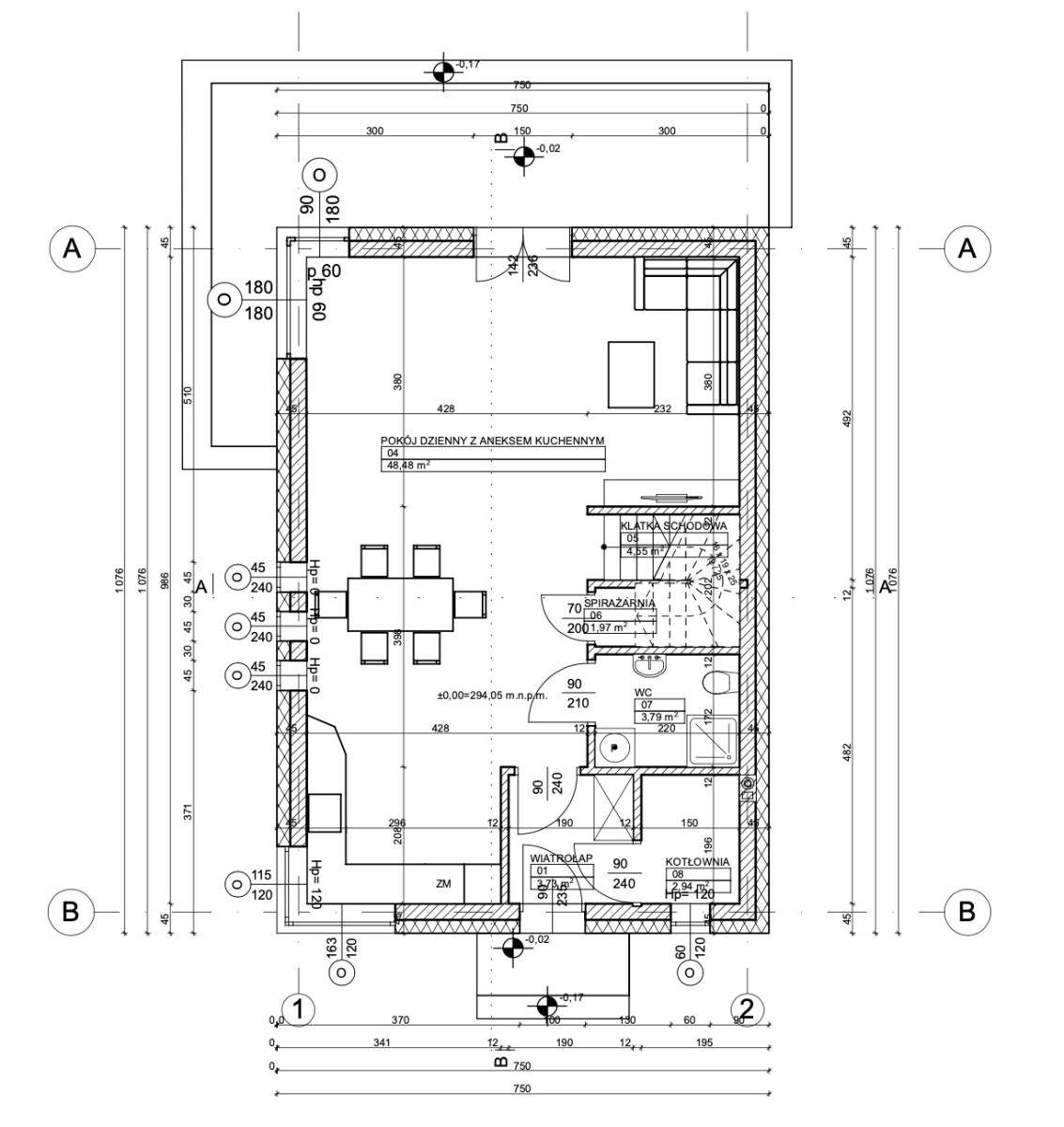
- Parter (77,5 m²): Salon z aneksem kuchennym (26,8 m²), oddzielna kuchnia (15 m²), gabinet (14,4 m²), łazienka, hol, wiatrołap.
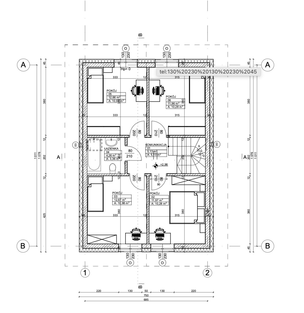
- Piętro (76,6 m²): Trzy sypialnie (w tym jedna z garderobą), przestronna łazienka, pralnia oraz funkcjonalny korytarz.
Podwyższony standard deweloperski – wysoka jakość materiałów oraz nowoczesne rozwiązania zwiększające komfort użytkowania.
- System alarmowy, okna i drzwi antywłamaniowe, domofon/wideofon.
- Instalacje przygotowane pod rolety zewnętrzne, monitoring, fotowoltaikę oraz światłowód.
- Pompa ciepła DAIKIN – energooszczędne i ekologiczne ogrzewanie.
- Pełna rekuperacja (z rekuperatorem KONFORMENT) – świeże powietrze w całym domu.
- Instalacja pod klimatyzację (2 punktu).
- Ogrzewanie podłogowe w całym budynku.
- Oświetlenie zewnętrzne LED.
Czemu to osiedle?
- Wysoki standard wykończenia (deweloperski +)
- Świetnie skomunikowane miejsce (dojazd do miasta autem czy pociągiem)
- Kameralne osiedle
- Doświadczony deweloper
- Duże pokoje sypialniane
- Nietuzinkowa bryła domu
Lokalizacja i komunikacja:
- Obwodnica Krakowa S7 – 4 min autem
- Galeria Krakowska – 15 km
- Szkoła, sklep, MPK, kościół – 3 min spacerem
- Łatwy dojazd do Krakowa i głównych węzłów komunikacyjnych
Planowany termin oddania do użytkowania: IV kw. 2025
Zapraszamy do kontaktu i na prezentację!
| Ogłoszenie nie stanowi oferty w rozumieniu KC.
|| Dla zapewnienia najwyższych standardów obsługi oraz zgodnie z obowiązującymi przepisami, przed prezentacją nieruchomości wymagane jest podpisanie umowy pośrednictwa.
||| Agencja Lokalizacja zastrzega za sobą prawo do przeprowadzenia krótkiej rozmowy telefonicznej przed prezentacją nieruchomości.

Jewgienij Jurczenko
Numer telefonu
+48 733 022 617E-mail:
jj.lokalizacja@gmail.comNajważniejsze informacje
- Symbol oferty: LOK-DS-209
- Powierzchnia: 227 m²
- Liczba pokoi: 5
- Rodzaj budynku: wolnostojący
- Technologia budowlana: pustak ceramiczny
- Kanalizacja: brak
- Standard:
- Liczba pięter w budynku: 1
- Stan lokalu: Stan deweloperski
- Rok budowy: 2025
- Woda: tak - miejska
- Internet: True
- Dojazd: pompa ciepła
- Otoczenie: taras
- Liczba wind: jest
- Piętro: 0
- Kształt działki: PCV
- Grunt utwardzany: nowe
- Opcje dodatkowe: klimatyzacja., ogród, ogrzewanie, taras, trzyszybowe okna
