Dowiedz się więcej:
Ciche mieszkanie 2 pokojowe przy samym Zamku Królewskim Wawel.
To mieszkanie daje prawdziwy komfort życia – ciszę, zieleń i pełną infrastrukturę pod ręką.
Pierwsze jak i 6 ostatnich zdjęć stanowią wyłącznie wizualizację pod możliwość komfortowej wizualizacji.
Podstawowe informacje:
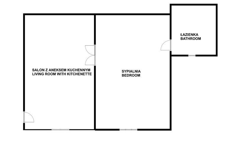
- Powierzchnia: 43,59 m²
- 2 pokoje
- Piętro: 1/2 (brak windy)
- Ekspozycja: południe
- Piwnica: 17,50 m²
Układ idealny dla pary lub pojedynczej osoby:
- Salon z aneksem kuchennym
- Drugi pokój
- Łazienka
Mieszkanie posiada duże okna, przez co samo wnętrze jest dobrze doświetlone naturalnym światłem nadając przestrzeni wnętrzu.
okna PCV;
Mieszkanie znajduje się w zabytkowej kamienicy w samym sercu Krakowa, przy samym Zamku Królewskim Wawel, w jednej z bocznych uliczek, dzięki czemu nie ma hałasu i natłoku ludzi.
Mieszkanie gotowe do zamieszkania lub do drobnego remontu.
Lokalizacja, która robi różnicę:
Okolica jest cicha i spokojna, mimo bliskości do samego Zamku Królewskiego Wawel wraz z Bulwarami Wiślanymi 200 m (2 min pieszo);
Przystanek tramwajowy „Jubilat” – 400 m (ok. 6 min pieszo);
Sklepy, restauracje, kawiarnie, bary, Bulwary Wiślane – wszystko w zasięgu ręki;
Same centrum, pozwala na dowolną komunikację w każdym kierunku Krakowa
Dodatkowe atuty:
- teren jest monitorowany, a wejście do kamienicy jest za pomocą specjalnej pinezki
- parking ogólnodostępny – bez problemów z miejscem
Dla kogo idealne?
dla pary
dla osób, które chcą mieszkać w centrum
dla seniora / seniorów
również pod bezpieczną inwestycję najmu
Cena: 760 000 zł
Piwnica: 20 000 zł
Czynsz: ok. 650 zł (woda, ogrzewanie, śmieci)
Kupujący nie płaci prowizji
a
Pośredników zapraszam do współpracy.
Zadzwoń bezpośrednio do mnie i zobacz to mieszkanie na żywo – lokalizacja przy samym Wawelu to dziś prawdziwa rzadkość.

Jakub Augustyniak
Numer telefonu
+48 793 002 131E-mail:
ja.lokalizacja@gmail.comNajważniejsze informacje
- Symbol oferty: LOK-MS-303
- Powierzchnia: 43.59 m²
- Liczba pokoi: 2
- Rodzaj budynku: Jednopoziomowe
- Technologia budowlana: cegła
- Standard:
- Liczba pięter w budynku: 2
- Garaż: brak
- Okna: PCV
- Rok budowy: 1900
- Gaz: brak
- Woda: tak-podgrzewacz elektryczny
- Dojazd: asfalt
- Otoczenie: 50
- Ogrzewanie: elektryczne
- Winda: nie
- Usytuowanie: jednostronne
- Piętro: 1
- Rozkład: jednostronne
- Opcje dodatkowe: monitoring
