Dowiedz się więcej:
Ciche mieszkanie 3 pokojowe z garderobą i ogrodem przy samym Zamku Królewskim Wawel.
To mieszkanie daje prawdziwy komfort życia – ciszę, zieleń i pełną infrastrukturę pod ręką.
Podstawowe informacje:
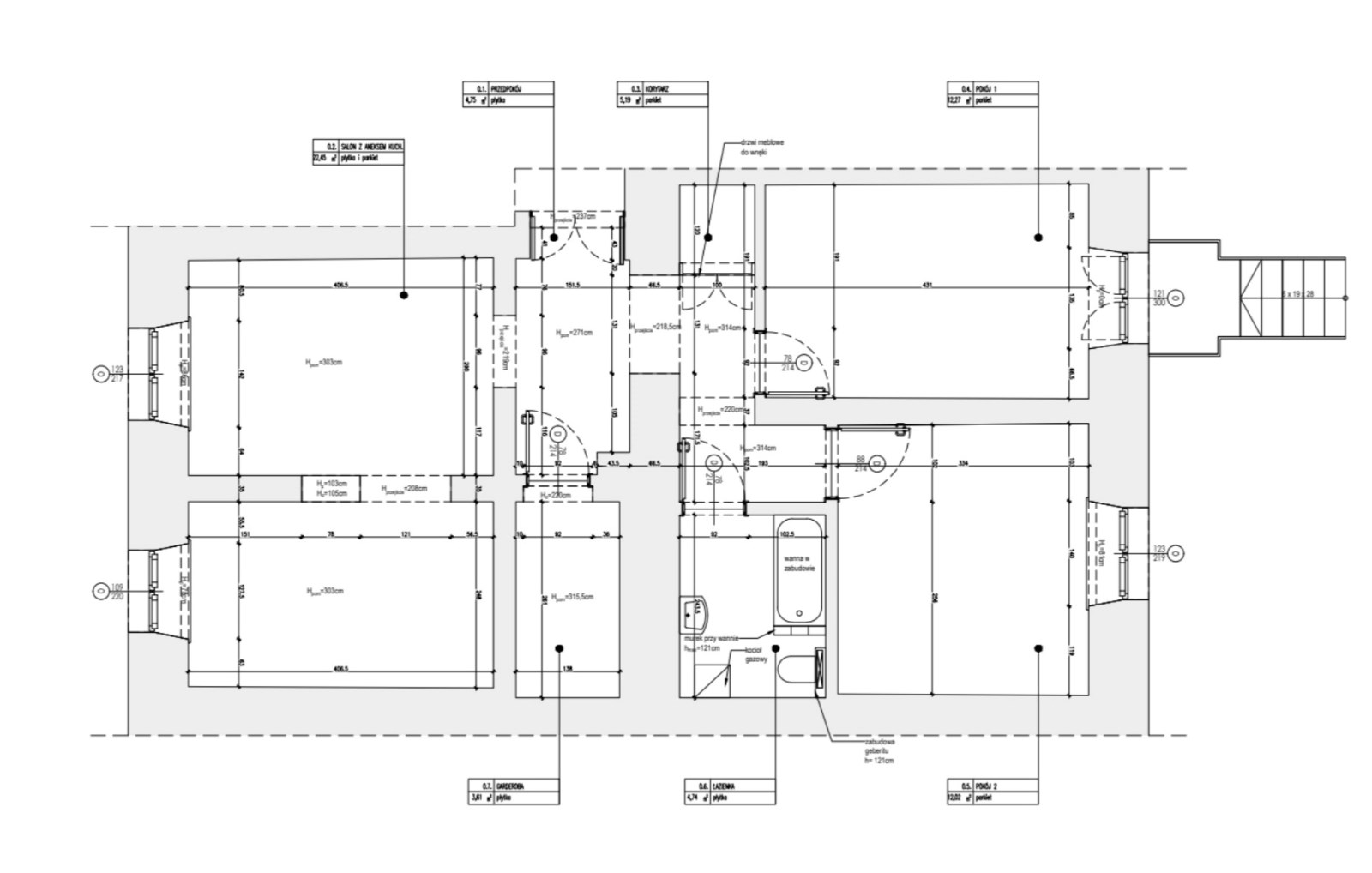
- Powierzchnia: 66,64 m²
- 3 pokoje
- Piętro: parter /2 (brak windy)
- Ekspozycja: wschód i zachód
- Piwnica: 19,23 m²
Układ idealny dla pary lub rodziny:
- Salon z kuchnią
- Dwie Sypialnie (jedna posiada wyjście na ogród)
- Łazienka
- Garderoba
Mieszkanie posiada wyjście na ogródek, który nie jest widoczny z ulicy.
Mieszkanie jest wpisane na dwóch księgach wieczystych
okna PCV;
Mieszkanie znajduje się w zabytkowej kamienicy w samym sercu Krakowa, przy samym Zamku Królewskim Wawel, w jednej z bocznych uliczek, dzięki czemu nie ma hałasu i natłoku ludzi.
Mieszkanie gotowe do zamieszkania lub do drobnego remontu.
Lokalizacja, która robi różnicę:
Okolica jest cicha i spokojna, mimo bliskości do samego Zamku Królewskiego Wawel wraz z Bulwarami Wiślanymi 200 m (2 min pieszo);
Przystanek tramwajowy „Jubilat” – 400 m (ok. 6 min pieszo);
Sklepy, restauracje, kawiarnie, bary, Bulwary Wiślane – wszystko w zasięgu ręki;
Same centrum, pozwala na dowolną komunikację w każdym kierunku Krakowa
Dodatkowe atuty:
- teren jest monitorowany, a wejście do kamienicy jest za pomocą specjalnej pinezki
- parking ogólnodostępny – bez problemów z miejscem
Dla kogo idealne?
dla pary
dla rodziny z dziećmi
dla osób, które chcą mieszkać w centrum
dla seniora / seniorów
również pod bezpieczną inwestycję najmu
Cena: 1 230 000 zł
Piwnica: 20 000 zł
Czynsz: ok. 900 zł (woda, ogrzewanie, śmieci)
Kupujący nie płaci prowizji
a
Pośredników zapraszam do współpracy.
Zadzwoń bezpośrednio do mnie i zobacz to mieszkanie na żywo – lokalizacja przy samym Wawelu to dziś prawdziwa rzadkość.

Jakub Augustyniak
Numer telefonu
+48 793 002 131E-mail:
ja.lokalizacja@gmail.comNajważniejsze informacje
- Symbol oferty: LOK-MS-304
- Powierzchnia: 66.64 m²
- Liczba pokoi: 3
- Rodzaj budynku: Jednopoziomowe
- Technologia budowlana: cegła
- Standard:
- Liczba pięter w budynku: 2
- Okna: PCV
- Rok budowy: 1897
- Gaz: jest
- Woda: tak-podgrzewacz elektryczny
- Dojazd: ASFALTOWA
- Otoczenie: 100
- Ogrzewanie: C.O. GAZOWE
- Winda: nie
- Usytuowanie: dwustronne
- Piętro: 0
- Rozkład: dwustronne rozkładowe
- Opcje dodatkowe: meble, monitoring, ogród, ogrzewanie
