Dowiedz się więcej:
2-pokojowy lokal z ogródkiem w sercu miasta – idealny pod inwestycję lub działalność
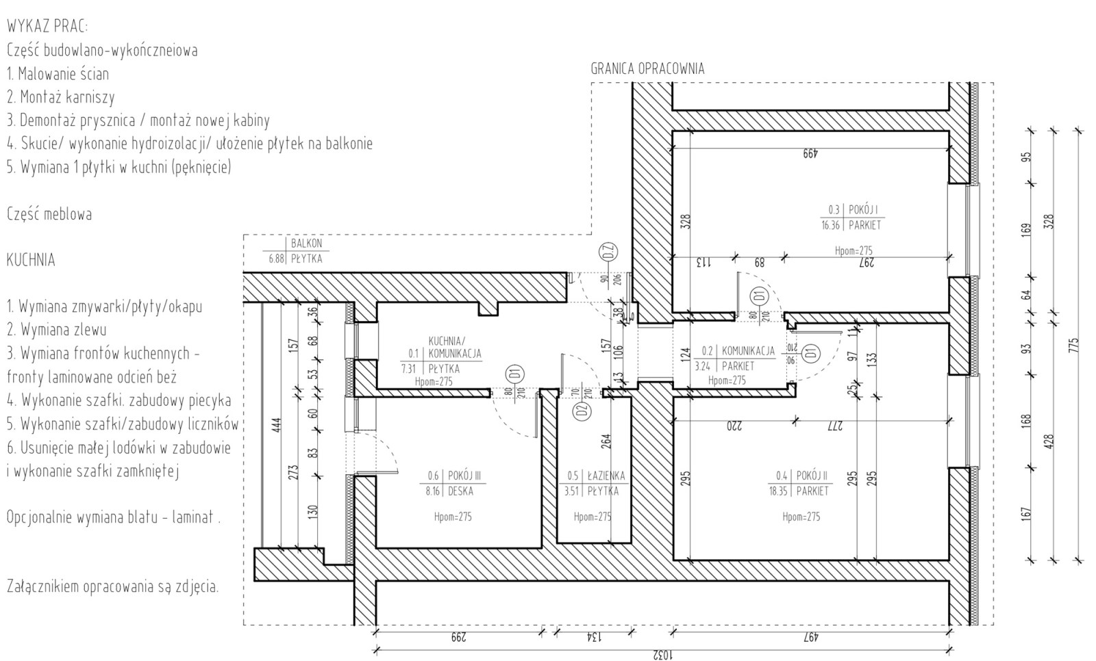
Na sprzedaż wyjątkowy lokal o powierzchni 50,57 m², położony w ścisłym centrum miasta, w prestiżowej okolicy przy Wawelu. Mimo centralnej lokalizacji nieruchomość oferuje ciszę, spokój i kameralną atmosferę, co stanowi rzadkość w tej części miasta.
Najważniejsze atuty nieruchomości:
- powierzchnia: 50,57 m²
- układ: 2 pokoje
- prywatny ogródek – idealny do relaksu lub aranżacji przestrzeni wypoczynkowej
- lokal w centrum, a jednocześnie w spokojnym otoczeniu
- duży potencjał inwestycyjny i aranżacyjny
Aktualne przeznaczenie:
Lokal jest obecnie przystosowany pod najem długoterminowy i funkcjonuje jako:
- kawalerka
- lokal użytkowy
Dzięki temu nowy właściciel może od razu kontynuować wynajem lub dostosować przestrzeń do własnych potrzeb.
Możliwości wykorzystania:
- mieszkanie dla siebie lub pod wynajem
- lokal inwestycyjny
- studio fotograficzne (świetne warunki – układ, światło, lokalizacja)
- działalność usługowa lub biurowa
To miejsce daje ogromną elastyczność – zarówno dla inwestora, jak i osoby szukającej nietuzinkowej przestrzeni w centrum miasta.
Cena: 1 050 000 złotych
Czynsz około 700 zł
Zapraszam do współpracy wszystkich agentów!

Jakub Augustyniak
Numer telefonu
+48 793 002 131E-mail:
ja.lokalizacja@gmail.comNajważniejsze informacje
- Symbol oferty: LOK-LS-344
- Powierzchnia: 50.57 m²
- Liczba pokoi: 2
- Standard:
- Liczba pięter w budynku: 2
- Okna: PCV
- Rok budowy: 1897
- Woda: ciepła - terma
- Dojazd: asfalt
- Otoczenie: centrum miasta
- Ogrzewanie: elektryczne
- Winda: nie
- Usytuowanie: dwustronne
- Piętro: 0
- Opcje dodatkowe: balkon, meble, monitoring, ogród, ogrzewanie, taras
