Dowiedz się więcej:
Off Market
Nowoczesny, energooszczędny dom przy lesie – Kochanów | 116 m² | gotowy do zamieszkania
Teren wokół domu, zostanie wygładzony, droga zostanie utwardzona, a wokół domu zostanie zrobione ogrodzenie. Więcej informacji udzielę telefonicznie.
Na sprzedaż wyjątkowy dom w zabudowie bliźniaczej położony w zielonej i spokojnej miejscowości Kochanów (gmina Zabierzów), zaledwie 13 km od Galerii Bronowice. To idealna propozycja dla osób ceniących nowoczesne rozwiązania, bliskość natury oraz szybki dojazd do Krakowa.
Najważniejsze informacje:
- Powierzchnia domu: 116 m²
- Działka: 3,5 ara (ogród ok. 350 m²)
- Cena: 1 299 000 zł
- Stan: wykończony „pod klucz” – gotowy do zamieszkania
Dla kogo?
- dla rodzin szukających komfortowego domu blisko miasta, ale z dala od zgiełku
- dla osób pracujących zdalnie – przestrzeń na gabinet, pracownię lub bibliotekę
- dla miłośników natury, aktywnego stylu życia i ciszy
- dla świadomych inwestorów, ceniących energooszczędne i przyszłościowe rozwiązania
Atuty nieruchomości:
- nowoczesna, energooszczędna technologia keramzytobeton całościenny – według indywidualnego projektu
- rekuperacja i przygotowanie pod fotowoltaikę oraz magazyn energii
- prywatna ścieżka prowadząca bezpośrednio do lasu
- położenie przy Tenczyńskim Parku Krajobrazowym
- bardzo jasne wnętrza i panoramiczne przeszklenia
- cicha, zielona okolica z szybkim dostępem do infrastruktury
- widok z okna na Tenczyński Park Krajobrazowy
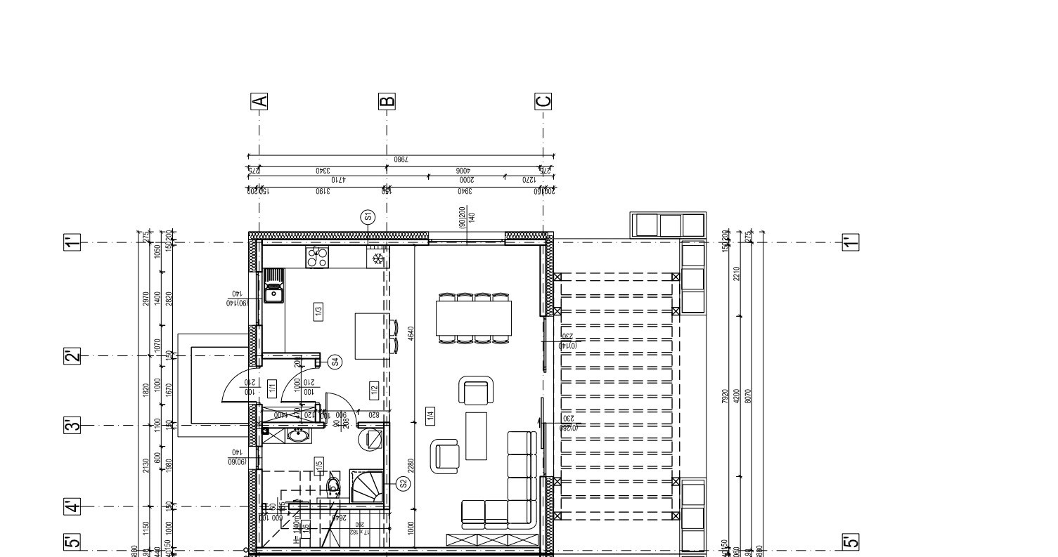
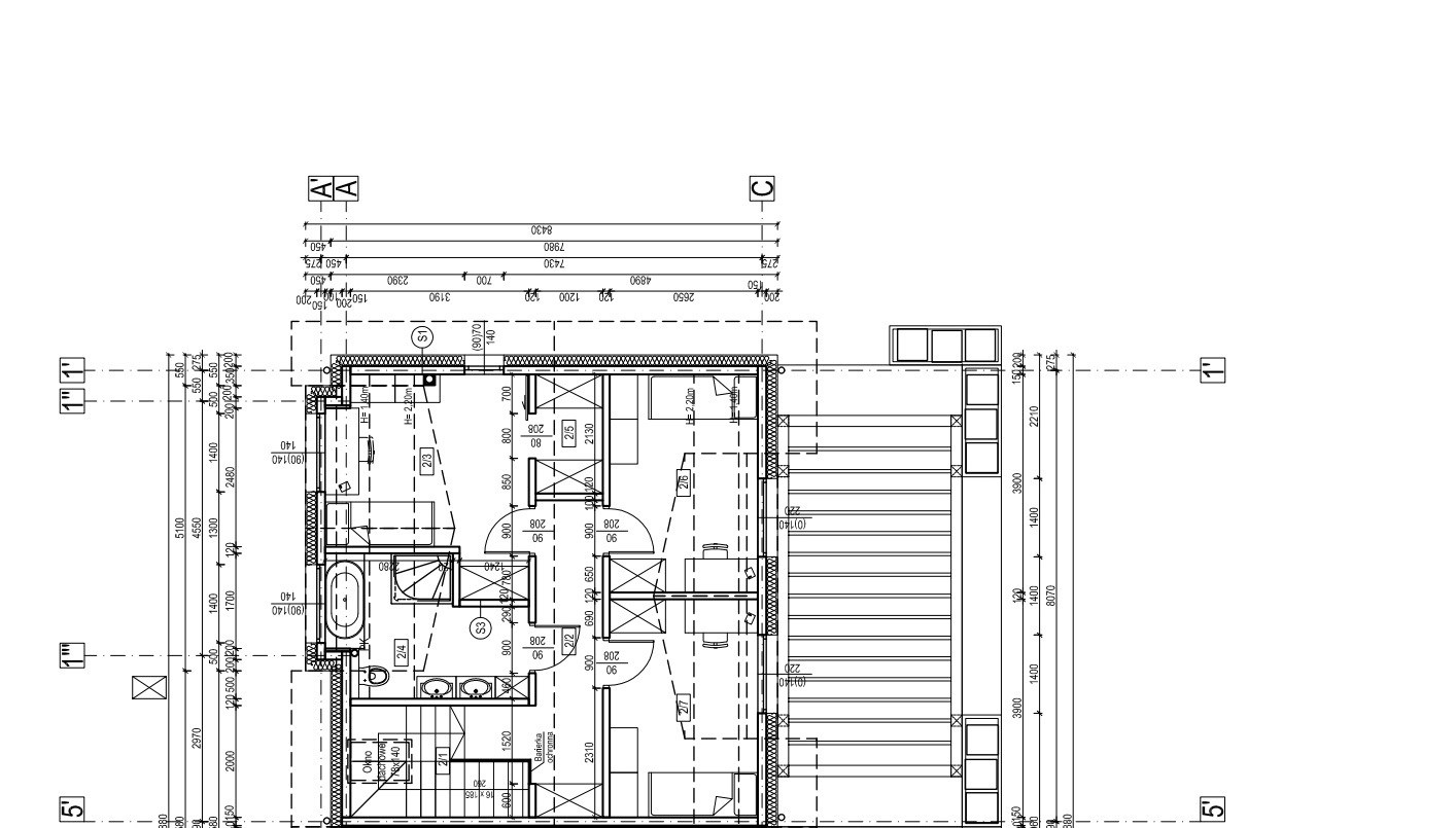
Układ pomieszczeń:
Parter:
- przestronny salon z dużymi przeszkleniami i wyjściem do ogrodu (ekspozycja południowa)
- otwarta kuchnia
- łazienka
- wiatrołap
Piętro:
- 3 sypialnie (w tym główna z garderobą)
- łazienka z wanną i toaletą
Dodatkowo:
- strych ok. 50 m² (po podłodze) – idealny na pracownię, bibliotekę lub przestrzeń hobby
Technologia i standard:
Dom wykonany w nowoczesnej technologii prefabrykacji keramzytobetonowej – trwałej, zdrowej i energooszczędnej.
Zalety:
- wysoka izolacja termiczna i akustyczna
- odporność na wilgoć, pleśń i czynniki atmosferyczne
- naturalny, przyjazny dla zdrowia materiał
Wyposażenie:
- dachówka ceramiczna
- okna trzyszybowe
- ogrzewanie podłogowe (możliwość pompy ciepła)
- rekuperacja
- przygotowanie pod instalację fotowoltaiczną
- ogrodzenie, utwardzony podjazd, 2 miejsca postojowe
Lokalizacja:
Dom położony na lekkim wzniesieniu, tuż przy lesie – naturalna ochrona przed wiatrem i wyjątkowy mikroklimat.
W pobliżu:
- przystanek autobusowy – 100 m
- obwodnica – 8 km
- tereny rekreacyjne, korty tenisowe, stadnina koni, zalew
- szybki dojazd do Krakowa
To idealne miejsce dla osób, które chcą połączyć komfort nowoczesnego domu z codziennym kontaktem z naturą.
W ofercie dostępna jest również część domu wykończona pod klucz!
Skontaktuj się, aby uzyskać więcej informacji i umówić się na prezentację!
/Ogłoszenie nie stanowi oferty w rozumieniu Kodeksu cywilnego.
//Przed prezentacją wymagane jest podpisanie umowy pośrednictwa.
///Agencja zastrzega sobie prawo do krótkiej rozmowy telefonicznej w celu potwierdzenia zainteresowania nieruchomością
Słowa kluczowe: Zabierzów, Kochanów, bliźniak, do zamieszkania, pod klucz, blisko lasu, szybki dojazd do Krakowa, blisko obwodnicy, widok na las.

Jakub Augustyniak
Numer telefonu
+48 793 002 131E-mail:
ja.lokalizacja@gmail.comNajważniejsze informacje
- Symbol oferty: LOK-DS-345
- Powierzchnia: 116 m²
- Powierzchnia działki: 350.00 m²
- Liczba pokoi: 4
- Rodzaj budynku: Dwupoziomowe
- Technologia budowlana: cegła ceramiczna
- Standard:
- Liczba pięter w budynku: 1
- Stan lokalu: Pod klucz
- Okna: PCV
- Rok budowy: 2026
- Gaz: w drodze dojazdowej
- Woda: ciepła - terma
- Dojazd: asfalt
- Otoczenie: las
- Ogrzewanie: podłogowe
- Winda: nie
- Usytuowanie: dwustronne
- Piętro: 0
- Rozkład: dwustronne
- Opcje dodatkowe: ochrona, ogród, ogrzewanie, taras
