Dowiedz się więcej:
Szukasz mieszkania, które ma logiczny układ, dobrą lokalizację i realny potencjał do życia lub wynajmu?
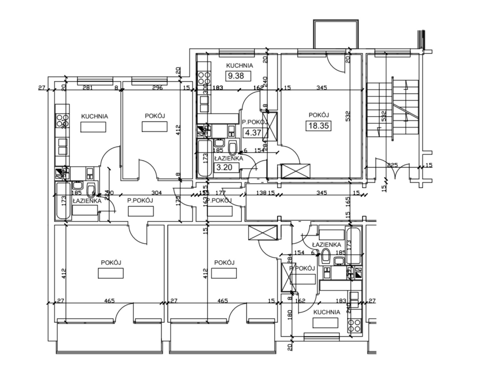
To 3-pokojowe mieszkanie przy ul. Zalesie 48 to propozycja dla osób, które chcą kupić przestrzeń „na lata”, a nie rozwiązanie tymczasowe.
Najważniejsze informacje
- powierzchnia: 61 m²
- liczba pokoi: 3
- piętro: 1 z 4
- budynek z 2008 roku
- winda
- balkon
- układ dwustronny
- stan: odświeżone
- mieszkanie puste – gotowe do własnej aranżacji
- kuchnia w zabudowie z podstawowym sprzętem AGD
Układ i funkcjonalność
Mieszkanie jest bardzo ustawne i dobrze zaprojektowane:
- salon z wyjściem na balkon
- dwie niezależne sypialnie
- oddzielna, jasna kuchnia
- łazienka
- przedpokój z miejscem do przechowywania
Układ daje dużą elastyczność – sprawdzi się zarówno dla rodziny, jak i pod wynajem (np. 3 niezależne pokoje).
Dzięki dwustronnej ekspozycji mieszkanie jest dobrze doświetlone i komfortowe w codziennym użytkowaniu.
Stan mieszkania
Mieszkanie jest odświeżone i utrzymane w dobrym stanie – można się wprowadzić bez konieczności przeprowadzania generalnego remontu.
Jednocześnie brak pełnego umeblowania daje możliwość urządzenia wnętrza dokładnie pod własne potrzeby.
Lokalizacja – Ruczaj / Zalesie
Jedna z najbardziej funkcjonalnych części Krakowa:
- ok. 6 minut pieszo do komunikacji miejskiej
- ok. 10 minut pieszo do Kampusu UJ
- szybki dojazd do centrum i Zakrzówka
- sklepy, szkoły, przedszkola i usługi w najbliższym otoczeniu
To lokalizacja, która dobrze sprawdza się zarówno dla rodzin, jak i pod wynajem (duże zainteresowanie najemców).
Budynek i otoczenie
- budynek z 2008 roku
- winda
- osiedle ogrodzone
- monitoring
Na terenie osiedla dostępne są miejsca parkingowe dla mieszkańców – obowiązuje zasada „kto pierwszy, ten lepszy”.
Ważne informacje
- mieszkanie nie posiada przypisanego miejsca postojowego
- parkowanie możliwe na terenie osiedla
- mieszkanie sprzedawane bez pełnego umeblowania (poza zabudową kuchenną i AGD)
Dla kogo?
- dla rodziny 2+1 lub 2+2
- dla pary planującej większą przestrzeń
Dlaczego warto?
- 3 niezależne pokoje na 61 m²
- 1 piętro – wygodne na co dzień
- budynek z windą
- funkcjonalny, dwustronny układ
- dobra lokalizacja – komunikacja + UJ
- mieszkanie puste – łatwe do aranżacji i szybkiego wydania
- potencjał zarówno do zamieszkania, jak i inwestycji
Koszty
Cena: 830 000 zł
Czynsz: ok. 1200 zł
Ogrzewanie: według dokumentacji – do potwierdzenia przy prezentacji
To mieszkanie najlepiej ocenić na żywo – szczególnie jego układ i potencjał aranżacyjny.
Zadzwoń bezpośrednio do mnie i umów się na prezentację.
Chętnie pokażę szczegóły i odpowiem na pytania.
Nazarii Didyk – Doradca ds. nieruchomości
Mówimy po angielsku i ukraińsku!
Спілкуюсь українською мовою!
/Ogłoszenie nie stanowi oferty w rozumieniu KC.
// Dla zapewnienia najwyższych standardów obsługi oraz zgodnie z obowiązującymi przepisami, przed prezentacją nieruchomości wymagane jest podpisanie umowy pośrednictwa.
/// Agencja Lokalizacja zastrzega za sobą prawo do przeprowadzenia krótkiej rozmowy telefonicznej przed prezentacją nieruchomości.
Słowa kluczowe: Ruczaj, Zalesie, mieszkanie Kraków, 3 pokoje Kraków, 61 m2, balkon, odświeżone, gotowe do zamieszkania, kampus UJ, mieszkanie dla rodziny, pod wynajem, ogrzewanie z kotłowni, rozbudowana infrastruktura.

Nazarii Didyk
Numer telefonu
+48 533 484 185E-mail:
nd.lokalizacja@gmail.comNajważniejsze informacje
- Symbol oferty: LOK-MS-343
- Powierzchnia: 61 m²
- Liczba pokoi: 3
- Rodzaj budynku: Jednopoziomowe
- Technologia budowlana: mieszana
- Standard:
- Liczba pięter w budynku: 4
- Okna: PCV
- Balkon: jest
- Liczba balkonów: 1
- Rok budowy: 2008
- Gaz: brak
- Woda: ciepła - miejska
- Dojazd: ASFALTOWA
- Winda: tak
- Liczba wind: 1
- Usytuowanie: dwustronne
- Piętro: 1
- Rozkład: dwustronne
